产品概述
局部放电是指在电场的作用下,绝缘系统中只有部分区域发生放电,但没有贯穿施加电压导体之间的区域即尚未击穿,这种现象叫局部放电。
局部放电是绝缘劣化的重要表征现象,是高压绝缘绝缘故障重要隐患的前期预警信号。及时发现局部放电对高压电器设备的绝缘故障意义重大,是避免重大事故的重要手段。
高压开关柜是使用极广且数量最多的开关设备。是电力系统的重要供配电设备,它的安全可靠运行是基础。高压开关柜中引起局部放电的主要原因有:导体、外壳内表面上的金属突起,常常是由于制造和安装时造成金属表面有较尖的毛刺;绝缘介质的缺陷、老化和表面的污秽造成绝缘内部或表面出现局部放电;高压母线连接处、开关电路触头接触不良或断路器触头接触不良造成局部放电;高压设备里的可以移动的金属微粒,主要在制造、装配和运行中产生,当靠近高压导体并未接触时,就很可能导致放电。
各类绝缘缺陷发展到最终击穿,酿成事故之前,往往先经过局部放电阶段,局部放电的强弱能够及时反映绝缘状态,因此通过在线监测局部放电来判断绝缘状态是实现开关柜绝缘在线监测和诊断的有效手段。

高压开关柜发生局部放电时,将会产生纳秒级陡度的电流脉冲。激发出频带很宽的电磁波。特高频检测传感器(即UHF传感器、TEV传感器及HFCT传感器)检测其中的高频电磁波频带在(300MHz-2000MHz),这个频段可以有效的避开开关柜的电晕干扰、工频干扰等可靠性高、抗干扰能力强。对各种局部放电类型均比较敏感,灵敏度可到几个PC。
UHF传感器、TEV传感器及HFCT传感器采用非接触式监测,不影响设备的正常运行、安全可靠。我司研发的UHF传感器采用一体式设计即接收、采集、计算与一体,避免高频信号传输的损耗。局放采集装置采用窄带滤波技术 、模糊算法、快速傅里叶变换、周期分组、类数据库匹配等算法可以排除现场各种干扰。
传感器内部运用DSP芯片完成计算存储,485总线上送至服务器。如下图所示:

图1 开关柜局放在线监测系统架构
局放在线监测装置主机
开关柜局放在线监测装置通过485接口和传感器连接,经本地高速分析处理后实时显示各通道的局放数据,还支持图型化显示。
3.1仪表技术参数:
1特高频传感器接口:8路
2液晶分辨率:7寸触摸屏 800*600
3采集卡带宽:100MHz
4采集卡分辨率:12位
5 通讯方式:RS-485
6 通讯速率:9600
7 工作电源:交直流80~260V
3.2 接线端子图:

图4、装置接线端子图
3.3 装置安装开孔尺寸:

局放监测装置安装在仪表室柜门上
图5、监测装置外形尺寸图与开孔尺寸图
3.4监测装置操作说明:
1. 装置通电开机后液晶屏显示如下界面,时钟逐秒跳动表示装置正在运行。如果显示的并不是当前日期和时间,请参考下面提及的步骤进行设置。装置显示面板采用7寸TFT触摸屏显示,点击图形听到滴声表示点击响应。装置初始密码:1234 。备注:不建议客户更改密码,密码只是防止误操作的手段,更改密码遗忘只能返厂刷机。
开机主界面如下:


2.系统维护菜单操作框图如下:

3.装置告警处理:
装置监测到局部放电信号时,客户可先点击确定按钮,在查看系统采集数据、装置运行参数。此时若故障仍然存在,装置在返回主界面时将再次告警。客户需要排除系统故障在按确定键查看。
特高频传感器采用传感采集一体化的设计,安装在开关柜内,壁挂式、磁吸式、固定式安装,根据具体情况可以选择安装在仪表室、手车室、母线室或者电缆室

(UHF传感器)
UHF传感器:采用超高频原理,安装时将传感器放置在被监测开关柜内,拾取超高频局部放电信号。
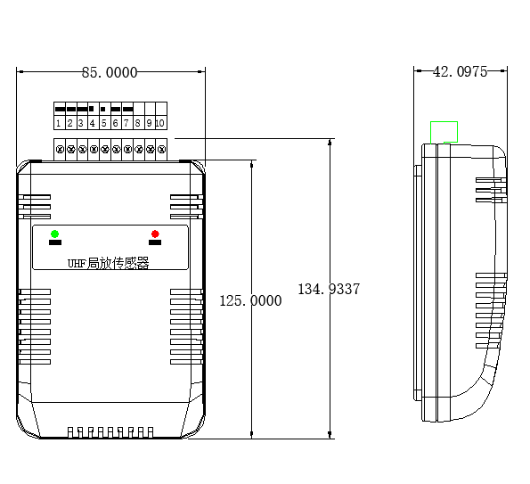
传感器尺寸及安装尺寸
5-1:UHF传感器:
1.从特高频传感器的背面向下推,取下传感器固定背板。
2.按照下图所示尺寸,在安装位置打相距81mm的2个5mm孔,用螺丝固定上背板。
3.固定好背板后,把传感器挂上即可。


4.传感器技术参数:
1 检测信号带宽:300MHz~2000MHz;
2 检测信号动态范围:60db
3 检测灵敏度:-65dbm
4 脉冲的时间分辨率为10μs
5电源电压:+12VDC
6电源电流:200mA
7工作温度:-20℃到+75℃
8安装方式:壁挂式或磁吸式
装置及传感器安装示意
系统主要由传感器和局放在线监测装置二部分组成,传感器和监测主机间通过485数据总线链接。每个监测主机可以带8个传感器。如下图所示:


